Research + Design Advanced Studio

Housing for One, and Others
Building on previous research on “Who is a Farmworker” and the earlier design exercise focused on dignified housing, this project seeks to extend the idea of dignity toward the goal of designing for safety. It explores the question: “How can architecture help people feel safe, even when they are sharing intimate spaces with strangers?”

The levels of involvement one can have with others
Who is a Farmworker in Chester?
Chester Agricultural Center is a nonprofit farmland management and leasing organization that provides affordable land and infrastructure to beginner farmers. Currently, there are 12 farms that share the land base of Chester. All the farms in Chester are APOC-owned seasonal crop farms, spanning from 5 acres to 25 acres. The largest farm in Chester is H2A Farms, which brings in 15 workers per season. The second-largest farm is Halal Pasture. Together, these two farms bring in the highest number of seasonal farmworkers—all from Mexico and Egypt—creating a total housing demand for 40 male workers per season. The farms are actively helping these workers obtain their visas, meaning there is an anticipation that some may bring their families over, further increasing the demand for quality housing in the Chester area. Additionally, many local and permanent workers on the smaller farms live in Chester full-time and would benefit from greater housing stock appropriate for single families.

Chester Agricultural Center Site Tour
Site Impression
The site borders NY Route 59 and Meadow Avenue, resulting in significant traffic noise along its perimeter. However, the wetland and pond on-site create a natural sound buffer due to the abundance of insect species inhabiting the area. Scattered pockets of trees are dispersed throughout an otherwise open and expansive landscape, which transitions into low rolling terrain toward the south.
There are two main intersections around the site’s perimeter: one at the northeast corner, where Route 59 meets Meadow Avenue, and another at the southeast corner between Meadow Avenue and McBride Road. These two intersections provide the most practical points for vehicular access. The site’s orientation should prioritize views toward the pond and wetland, as they offer both a natural sense of privacy and a visual buffer from passing cars on Route 59.
The housing scheme takes the view around the site to situate the housing units. Each module has a view directed towards the pond and the wetland from the bedroom/ north elevation.



The Housing Unit
One of the biggest impact farmworkers suffers from through inadequete housing condition is the stress resulting from ovecrowded and yet also isolated housing, according to a study from Wake Forest School od Medicine. This leads to the inquiry of how can a housing model be designed to fit both the need for greater social connection but also accomodate for when informal crowding might happen? Moreover, how can architecture make people feel more safe in their homes when their home is shared with strangers?
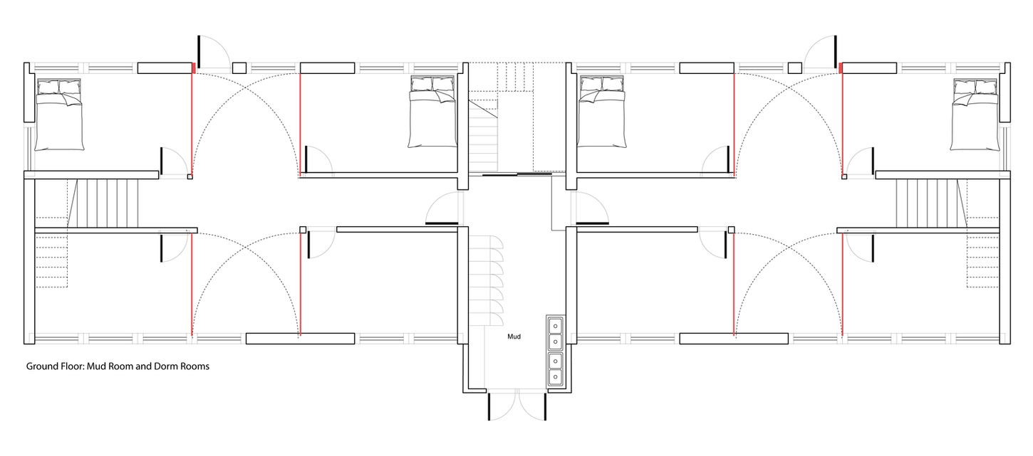
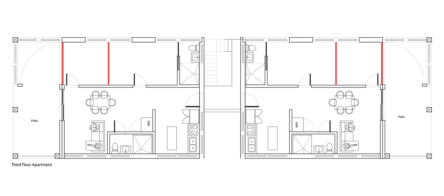
The project proposes a building complex where two independent modules are connected via a shared program of a mud room and a terrace above. Each of the modules has a configuration where the first two floors rs are dormortories for seasonal workers and the top floor is a single family apartment. The masses in the building is shifted and stacked to creat different gradients of social spaces, such a a balcany, a shared terrace, and a private terrace. A gradient of social spaces are used as a tool to create "social spaciousness", where residents don't just live together, they also come together to relax, exercise and conversate.
Dignity on a living unit level means flexibility to accomodate for informal visitors to combat overcrowding. For that reason,while each dorm room is 10'x 15', when the partition walls are activated, the rooms can expand up to 10'x 25', allowing space for informal visitors while satisfying the individual's need for personal space.

Movable Partitions, Dorm to Barns
The base configuration of the first floor contains four rooms. When the partition walls are opened, these rooms expand into 10' x 25' spaces, providing more room for individual occupants when hosting informal visitors. At maximum capacity, the first-floor layout can accommodate up to six beds.
Currently, the local farmers are sharing lease for barn space rental from chester farm. The project proposes to use movable partition to open up the ground floor of the structure when not occupied as dorms into winter barn spaces. During the winter season, when seasonal workers are not occupying the units, the partitions can be fully opened to transform the floor into a large flexible space. Farmers can then repurpose the area for storage or communal activities as needed, such as storing small farming equipment, processing food, making kimchi, or drying corn.
Site Planning
The housing units are arranged around the pond and wetland, with the main communal space situated along the pond’s edge. This layout takes advantage of the natural sounds of insects that emerge from the water, creating an immersive auditory experience that connects residents to nature. The houses are clustered in groups of two and three along a central road that runs through the flat portion of the site. A small footbridge will cross the wetland, linking the two sides of the site.

Massing Model Plan
Building Development Plan



























